Бюро AB3D уже завершило строительство жилого комплекса Perle в латвийском Адажи.
Жилые малоэтажные здания, уверенно можно назвать одной - из самых динамично развивающихся архитектурных типологий в условиях современной Латвии. Ведь определенно малые расстояния дают возможность придать максимальный уровень комфорта, присущий именно городу, в условиях жизни на природе, в чистой экологичной зоне. «Жемчужина», именно так переводится название комплекса Perle, находящегося от центра Риги всего в 20 километрах, в небольшом живописном поселке на берегу Белого озера (Baltezers). Второе свое название, вслед за улицей на которой собственно и расположен, он получил от природы. «Берега шишек» - Ciekurkrasti, а их здесь необычайно много из-за соснового леса.
Комплекс успел получить награду еще на уровне проекта на выставке MIPIM, а совсем недавно был награжден премией A+Awards как одно из лучших малоэтажных жилых зданий - от портала Architizer.
Застройка высотой в 2-4 этажа при площади в 11,357 тыс.кв.м как бы узким клином уходит к уровню пляжа, открывая вид на воду, практически с любой точки обзора. Реализация такого решения была более чем сложной. В основание здания для укрепления грунта необходимо было вбить 721 сантиметровую сваю. И теперь сами создатели комплекса часто шутят, о том, что из окон можно ловить рыбу в озере, а все объясняется тем, что из 63 квартир, только 4 полностью выходят на внутренний двор, усаженный соснами.
Довольно сложная и ступенчатая композиция, немного дробный или нерегулярный ритм в объемах позволили архитекторам намного легче вписать весьма крупное строение в природную среду. В больших площадях остекления отражается вода и небо, а вертикаль планок на вентилируемых фасадах, подчеркнутых жженой сибирской лиственницей, полностью сливаются с растущими стволами деревьев и как бы подчеркивают само понятие мимикрия.
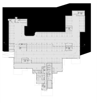
В жемчужном жилом комплексе присутствуют все основные черты, так необходимые современному комфортабельному жилью: панорамные лифты, ресторан с видом на озеро, SPA-центр, баня и бассейн, зоны отдыха на крыше из уступов, и, естественно, подземная парковка на 80 автомобилей, наземная гостевая автостоянка. В подземной части также находятся индивидуальные «места хранения». Жилой комплекс имеет свою пристань для яхт и катеров, а из озера легко можно выйти в само Балтийское море.
Индивидуальная компоновка каждой квартиры предлагается с полной дизайнерской отделкой: в качестве напольного покрытия использованы разные породы дерева, кухня современна, есть и благородные камины, встроенные шкафы и самая современная техника.
Апартаменты по площади варьируются в пределах от 67 до 211 кв.м.
Более жесткий стиль, с металлическими конструкциями и открытыми бетонными поверхностями, применен в архитектурном решении, для входных зон и лестничных клеток.