Компания Patrick Tighe Architecture представила миру новый жилой дом на берегу Тихого Океана. Архитекторы компании модифицировали ранее построенный дом стоечно-балочного типа в солнечном городе Малибу, штат Калифорния, США. Метаморфозы, которым поддался дом в течение строительства, превратили его в модную и современную резиденцию, площадь которой, примерно, равна двумстам квадратным метрам.
Минималистический стиль гостиной неспроста напоминает галерею, таким образом, архитекторы предоставили будущему хозяину дома место для размещения коллекции работ современного искусства.
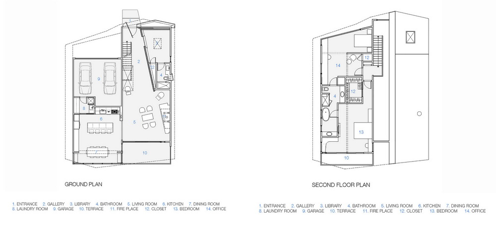
![]()
Особое внимание стоит предоставить лестнице, так как каждая ступенька имеет неповторимый в своём роде узор, созданный с помощью лазера. Так же, с помощью светового люка, размещённого над лестницей и прорезям на ступеньках, солнечный свет, попадающий в течение дня на ступеньки, создаёт меняющийся теневой узор на полу и стенах гостиной.
Так же, компания Patrick Tighe Architecture позаботилась об экологии внешней среды, предусмотрев систему превращения солнечной энергии в электрическую. Выработанное данной системой электричество будущий хозяин дома может потратить на зарядку своего электрокара.