Проект “Честер” — это небольшой, но уютный и комфортный двухэтажный каменный дом. Выполнен в английском стиле, что придает проекту некую строгость и элегантность. Достаточное количество окон отлично пропускает солнечный свет, что позволяет сделать дом ярким и красивым.
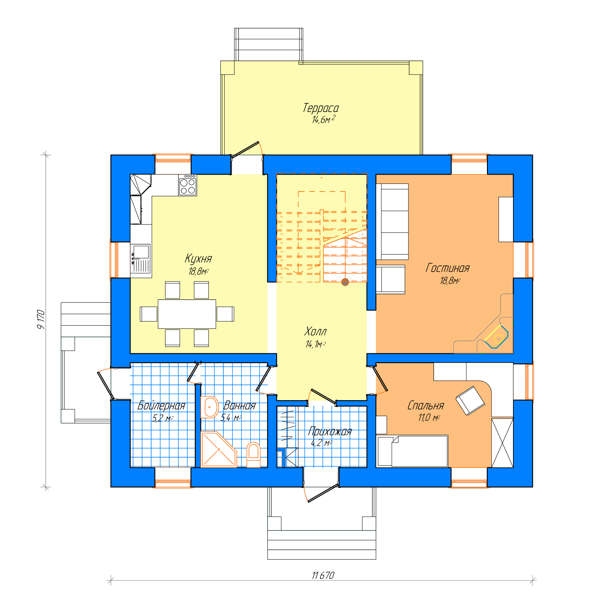
На заднем дворе расположена достаточно просторная терраса для отдыха как в хорошую, так и в плохую погоду. На первом этаже имеется небольшая прихожая и холл. В правом крыле разместилась небольшая спальня, которую можно переделать под любую комнату и гостиная комната. В левом находится бойлерная и ванная комната, площадь которых составляют 5 метров. Чуть выше расположена большая и просторная кухня.
Второй этаж отличается абсолютной симметрией. На этаже находятся 4 спальных комнаты с одинаковой площадью – 15.2 метра. Планировка предполагает их переделку под комнаты любого назначения – гостиную, детскую и т.д. Также на этаже имеется небольшая ванная комната и холл.
Проект “Честер” — небольшой, но весьма уютный и комфортный каменный домик для семьи. В первую очередь он практичен тем, что дает возможность самостоятельно определять целевое назначение каждой комнаты. Это отличный вариант для тех, кто хочет получить компактный дом с комнатами среднего размера.
* - Комплектация дома и перечень используемых материалов могут быть изменены и дополнены согласно Вашим пожеланиям.
Как выбрать проект, на что обратить внимание, с чего начать?!
Дом- крепость, тихая гавань, положительная энергия. Дом должен быть удобен именно для Вас, перед штудированием сотен типовых проектов лучше всего составить список пожеланий к дому .Необходимо понять что Вам нужно от вашего дома, какие комнаты и помещения необходимы, какие мелочи жизненного пространства формируют вашу повседневную жизнь и что бы вам хотелось изменить.
Строительство любого дома должно начинаться с идеи или философии дома. Например, за основу дома может быть взято древнее учение о рационализации жизненного пространства Васту Шастра или более молодое Фен Шуй, либо можем опереться на пропорции и правила золотого сечения,- в основе может лежать любая идея и она должна быть близка Вам.
После формирования идейной составляющей можно переходить к компановке помещений этажей затем к фасадам. Полученная оболочка дома должна быть доработана и конкретизирована с учетом современных материалов и финансовых возможностей. Необходимо определиться с материалами стен, перекрытий, стропильной и кровельной систем, а также отделки.
Существует ряд общих критериев, при выборе строительного материала, которые волнуют большинство будущих владельцев домов, а именно: надежность, экологичность, стоимость, а также стоимость эксплуатации материла. Последний критерий можно разбить на две группы: долговечность материала и энергоэффективность материала либо комбинации материалов.
Под энергоэффективностью материала мы понимаем эксплуатационную характеристику, обратно пропорционально зависящую от количества потребленной энергии. Чем меньше энергии затрачивается при эксплуатации материала, тем выше его энергоэффективность, но есть еще коечто. Энергоэффективность есть понятие сложно составное, нельзя считать материал энергоэффективным при эксплуатации которого затрачивается мало энергии, но при этом он слишком дорог и период окупаемости его слишком велик, ведь деньги - таже энергия.
...
В случае обнаружения неточностей на сайте просьба сообщить нам по телефону +7 (495) 988-99-79 или по электронной почте info@leondom.ru Заранее благодарны. Данный сайт носит исключительно информационный характер и не является публичной офертой, определяемой положениями статьи 437 Гражданского кодекса Российской Федерации.
Строим дома вместе
с КБ "ЛОКО-БАНК"
* Процентная ставка зависит от первоначального взноса и срока кредитования.
Указанные условия предусматривают компенсацию процентной ставки по
кредитному договору с размерным снижением цены на дом, приобретаемый за счет кредита.
Оформите заявку и получите выгодный кредит:
КБ "ЛОКО-Банк" (АО) - универсальный коммерческий банк, основанный в 1994 году. В состав акционеров с 2006 года входит международная инвестиционная компания East Capital. Участие в капитале банка международного инвестора на протяжении более 10-ти лет способствует поддержанию высоких стандартнов риск-менеджмента, и определяет качество бизнес-процессов и корпоративного управления.
Ваш персональный менеджер:
Меня зовут Максим Щеглов, я являюсь руководителем направления по работе с партнерами Локо-Банка. Если у вас возникли какие либо вопросы, не стесняйтесь связаться со мной.
Время для звонков с 09:00 до 17:00 с понедельника по пятницу.
+7 (965) 244-77-71
Заявки на рассмотрение кредита прошу направлять на почту creditmsk@lockobank.ru